
Полная версия:
Ни дня без пиццы. Дневник Странствующего Пиццайоло
1. Идет разработка формы договора для потенциальных инвесторов. Рассчитываю получить его от юриста до конца рабочей недели.
2. Продолжаем думать над названием и логотипом будущей сети.
Подготовили несколько вариантов для обсуждения в команде.
3. Получил чертежи помещений кафе в районе Баляева в AutoCad. Сегодня отправил их проектировщикам в Санкт-Петербург.
4. На завтра в 15:00 – встреча с программистом, обсудим работу в «облаках».
5. В 13:30 встречаюсь с дизайнером-проектировщиком. Поговорим об условиях работы над дизайном наших пиццерий с залами для обслуживания гостей. Студия делает проекты в 3D-формате, что позволяет достичь практически 100% визуализации будущего объекта. Надеюсь, и наши пиццерии мы тоже сможем увидеть «как настоящие» за пару-тройку месяцев до их воплощения в реальности!
ДЕНЬ 33. В стиле лофт
Состоялись все запланированные встречи.
Обсудили с дизайнером условия сотрудничества, сроки, стоимость. Главная рекомендация – выбрать в качестве основы стиль «лофт», который сейчас в тренде и хорошо подходит под наш проект.
С программистом наметили задачи, которые нужно выполнить до конца февраля. Среди них – завершение работы над техническим заданием для программного обеспечения, изучение функционала аналогов, к примеру, программы Frontpad. Родилась мысль: в связи с тем, что первая пиццерия начнет работать намного раньше, чем мы получим первый функциональный вариант нашего собственного софта, запускаться мы будем именно на Frontpad. Следовательно, уже пора приступать к изучению и внедрению программы. Завтра этим и займусь. Понадобятся консультации со стороны технологов, программистов и финансистов.
Обсуждали с одним из партнеров возможность изготовления в Корее под заказ технологических столов для сборки пиццы. Пока приняли решение приобрести для первой пиццерии российские столы. А вот для второй-третьей и последующих подумаем об импортных вариантах.
По просьбе постоянных читателей блога начал внедрять метки в посты блога. Надеюсь, всем понравится это «Облачко» :)
Цитата из письма: «Лофт – это на 101% тот стиль, который лучше всего подойдет для пиццерии, пекарни, кофейни. Сейчас это очень популярный стиль среди кафешек, ресторанов такого типа, хорошо завязывается с выпечкой. Лофт – довольно брутальный, но его можно сделать подосновой и далее добиваться нужного впечатления. Если хочется ярких пятен и позитива, почему бы и нет. В общем, стильно, модно, молодежно…»
ДЕНЬ 34. Тайм-менеджмент
Сегодня собрались на экспресс-совещании по продвижению нашей будущей сети пиццерий. Обсудили несколько рекламных фишек. Особенно понравилась идея о создании фирменных открыток, посвященных пицце.
Выбрали место для нашей второй пиццерии. Завтра, в субботу, на замеры объекта, расположенного в центре города, едут руководитель нашей строительной группы в компании с дизайнером, обсуждать все строительные вопросы лучше сразу большой компанией и непосредственно на месте.
Странствующий Пиццайоло возвращается. В смысле, начинает свое очередное «странствие». Завтра вместе с другом еду в приграничный китайский город Хуньчунь. Рассчитываю на вкусное и познавательное гастрономическое путешествие в рамках исследовательского тура по оптовым базам, где мы постараемся найти необходимые в будущем инструменты и материалы.
Решил записать для читателей блога свои мысли об управлении временем.
Тайм-менеджмент, или Сказка о потерянном времени
Рассказ про управление временем начну с кайроса.
Для начала – цитата из Википедии: У древних греков было два слова для времени: «хронос» – касается хронологической последовательности или времени прошедшего и все пожирающего (имеет количественный характер); «кайрос» – неуловимый миг удачи, который всегда наступает неожиданно, и поэтому им очень трудно воспользоваться (имеет качественный характер).
Это очень простое и известное многим правило, но мало кем по-настоящему используемое. Большинство людей тратит в 2—3 раза больше времени на выполнение задач только потому, что забывают этот житейский принцип.
Тайм-менеджмент.
Принцип кайроса еще можно охарактеризовать как «совершение чего-либо по пути».
Часто из-за того, что мы не планируем дела наперед, нам приходится ездить или ходить в одно и то же место дважды, а то и трижды.
Например, нужно было попасть с ребенком на кружок в центр города, а по пути заскочить на почту за посылкой. Но для этого нужно было запланировать поездку и, как минимум, не забыть взять с собой извещение с почты и паспорт. Если ты этого не сделал, то попадаешь на повторное перемещение по городу. В результате тратится лишнее время, которое уже не вернуть и не использовать на более нужные дела.

Кадр из советского фильма «Сказка о потерянном времени».
Еще одно интересное правило – я его называю «после дождичка в четверг», многие им тоже пренебрегают.
Нужно знать, что часть мероприятий можно и нужно планировать без указания точного времени, привязывая их только к конкретному событию в будущем.
Разберем на примере: «Пойду в кино после дождичка в четверг».
Иными словами, только после того, как дождь пойдет именно в четверг. Таким способом нормальные рачительные хозяева заблаговременно, еще летом, планируют уборку снега на автостоянке. Ведь они знают, что снег можно убирать только после того, как он выпадет! Поэтому летом они распределяют обязанности, покупают инвентарь, лопаты, носилки. Заключают договоры с субподрядчиками и прочее.
А когда снег выпадает, то у них все идет по плану.
Еще одно правило базируется на осознании непреложного факта, что нельзя все в своей жизни успеть сделать самому. Поэтому необходимо научиться отдавать выполнение части задач на сторону. Родственникам, друзьям, коллегам, субподрядчикам, сотрудникам или соседям.
А что, если их там сделают плохо? Тут нужно понять одну важную вещь. Если ты будешь делать что-то сам вкупе с другими многочисленными задачами, то ты: 1. Либо это вообще не сделаешь из-за нехватки времени; 2. Либо сделаешь это плохо, потому что будешь отвлекаться на другие дела; 3. Либо сделаешь это дело, но «занавесишь» на другие, более важные дела.
Повторю: все сделать невозможно.
Это факт. Нужно научиться делегировать.
Рядом находится еще одно правило. Многие дела можно вообще не делать. Но вы их все равно делаете по привычке.
Как в истории про хозяйку, которая внезапно задумалась, почему, когда она варит мясо, то разрезает его всегда на три куска. Вспомнив о том, что так всегда делала ее мать, позвонила ей, а та перенаправила ее к бабушке. Слава богу, та еще была жива. Бабуля вспомнила, что раньше у них дома из-за тотального дефицита в СССР не было большой кастрюли, поэтому мясо всегда приходилось разрезать на три куска и варить его по очереди. В результате три поколения женщин сохранили ненужную привычку.
Пятое правило. Очень важно научиться оценивать свое время в деньгах. Для начала нужно самому себе ответить на вопрос: «Сколько ты стоишь?» или «За сколько тебя можно нанять на работу?» или «Сколько нужно платить тебе в час или в день?» Если на этот вопрос ответить трудно, то можно посчитать по-другому: «Сколько тебе нужно денег в месяц?» Подсчитать все затраты. В рублях или долларах – неважно.
Здесь важен сам принцип. Допустим, тысяч семьдесят.
Теперь простая математика. Для того чтобы получить 70 000 рублей на руки, любой сотрудник в любой компании должен создать прибавочной стоимости на сумму не менее чем в три раза больше своей зарплаты, чтобы окупить основные затраты компании, в которой он работает.
То есть в данном примере – около 200 000 рублей. Если в месяц ты работаешь 200 часов (для ровного счета – 20 дней по 10 часов), значит, твой час стоит приблизительно 1 000 рублей.
Если ты делаешь что-нибудь в своей жизни или на работе, что другой человек может сделать за гораздо меньшие деньги, то ты совершаешь преступление по отношению к себе и своему времени.
На самом деле, ты можешь нанять соседского мальчишку, чтобы он бегал в магазин за простыми продуктами по твоему списку. Ты можешь попросить соседку гладить белье дома за сумму гораздо меньшую, чем стоит твой час. А купленное за эти деньги свое личное время использовать с пользой для себя. Но вы же уверены, что молоко можете купить только вы сами лично? Правильно? И последнее (шестое) правило на сегодня. Это эргономика.
Мы порой не замечаем, что тратим в 2—3 раза больше времени только из-за того, что вещи лежат не там, где они должны находиться.
Например, если вы правша, а стаканчик с карандашами и ручками на офисном столе стоит слева, то вы будете тратить десять секунд вместо двух, чтобы взять ручку, и столько же, чтобы положить ее обратно. В обоих случаях разница во времени доходит до 5 (!) раз. А в итоге за один цикл – до 16 секунд потери. То есть четверть минуты, или четверть вашего времени!.
Я не знаю, как вы ведете дела на работе или по дому, но, вероятно, наступаете на одни и те же грабли, как и многие другие вокруг. Есть еще несколько хороших правил, но если начать использовать хотя бы эти шесть, то ваша жизнь изменится навсегда, вы больше не захотите возвращаться в прошлое.
Вопросы вдогонку:
1. Сколько времени у вас занимает стирка и глажка в неделю?
2. Сколько времени вы тратите на поездки в магазин?
3. Вы ездите туда вдвоем с супругой/супругом или порознь?
4. Сколько времени у вас отнимают мессенджеры и соцсети? Попробуйте посчитать…
А заодно подумайте, как вы могли бы распорядиться сэкономленным временем. Вы легко найдете 2—3 часа лишнего времени, если будете «ходить за собой по пятам». А это около 12—15% времени бодрствования. Его можно конвертировать в то, что вам по-настоящему важно.
И еще одна мысль на заметку.
Среди ваших близких, друзей и знакомых есть люди, которые без ума (в смысле увлеченности) от тех вещей, которые вам совершенно не нравится делать: кто-то любит стирать, кто-то – ходить по магазинам, кто-то – мыть посуду, кто-то – гулять с детьми и так далее… Возможно, стоит отдать в другие руки нелюбимые дела? И в этих руках они получатся гораздо лучше, чем в ваших?.
ДЕНЬ 35. Этот загадочный Хуньчунь
Всем привет от Странствующего Пиццайоло! В этот раз меня с товарищем занесло в город Хуньчунь на севере Поднебесной. Перефразируя героев «Бриллиантовой руки», скажу: «Хуньчунь – город контрастов!» Со всеми остановками, накладками, таможенными чистками и иммиграционным контролем мы оказались в гостинице по эту сторону границы менее чем через 6 часов после отъезда из Владивостока.
Расположенный в центре города отель, куда мы заселились, носит название Хердун (!), но работает по франшизе международной сети Хилтон.
Сразу после обеда в пельменной с русским названием «Аромат» мы отправились исследовать близлежащие районы. Цель поиска магазины и оптовые центры, где можно купить оборудование и инструментарий для нашей будущей китайской пиццерии.
Не могу сказать, что первая вылазка увенчалась особым успехом. Часть инструментов мы нашли, но не в том объеме, на который рассчитывали.

Мы насчитали 10 видов пиццы в холодильнике.
Дизайн коробок вызывает аппетит!
Открытием стало полное отсутствие пиццерий, несмотря на разнообразие точек фастфуда.
Почувствовали себя героями старого анекдота про двух коммивояжеров из конкурирующих обувных фабрик, которых директора отправили в Африку изучать потенциальный рынок сбыта. Проведя несколько дней на жарком континенте, один из них заявил, что рынок обуви там полностью отсутствует, так как все жители ходят босиком. А второй с энтузиазмом доказывал, что Африка – это огромный перспективный рынок, потому что здесь обуви нет ни у кого! Вот и я весь день думал, неужели китайцы не любят пиццу? На самом деле – любят, да еще как! В качестве подтверждения их гастрономических пристрастий прикрепляю фотографию красивых упаковок замороженной пиццы на прилавках одного из их супермаркетов.
Единственная причина, почему здесь нет пиццерий – хуньчуньцы ждут, когда их откроем мы! В ближайшее время мне обязательно нужно оказаться в Суйфэньхэ – другом приграничном городе нашего восточного соседа, чтобы еще и там оценить потенциальный рынок.
Кондитерская с аппетитным названием «Искусство торт моноацетилморфин» в Хуньчуне

Путешествуя по городу, я наслаждался удивительно креативными названиями компаний на многочисленных вывесках и билбордах. Пример одной из них привел меня в состояние душевного трепета. Теперь я знаю, как нарекать кондитерские в Китае, чтобы обеспечить наплыв покупателей. И обязательно название нужно перевести на русский язык, чтобы порадовать и привлечь наших соотечественников – «Искусство торт моноацетилморфин».
Еще запомнился один вид городского транспорта на электрическом ходу.

Очень распространенный в городе Хуньчуне электротранспорт
ДЕНЬ 36. Велорикши и формула «9-12-15»
Емкости для соусов, которые используются при сборке пиццы Велорикша – вымирающее экзотическое транспортное средство для путешествий по городу Очередной день китайского исследования. Пиццерии как формат фастфуда в городе так и не обнаружены, хотя пицца как элемент меню присутствует в одном неплохом ресторанчике неподалеку от центра города.
Цены на пиццу в нем – 59, 79, 99 юаней за маленькую, среднюю и большую пиццу соответственно. Даже при нынешнем курсе 8,5 рублей за юань они явно не демократичные.
Прикупил для экспериментов емкости для топпингов. Они используются при сборке пиццы для равномерного нанесения всех соусов, кроме основного, так называемого пицца-соуса.
Им на смену пришли бензиновые и электромобили, созданные на базе мотороллеров. Велорикша почти полностью превратился в мото- и электро-рикшу. Большое разнообразие моделей, на любой вкус и цвет. Подумалось, может нам стоит доставлять пиццу на них. По крайней мере, это будет выглядеть экзотично на наших дорогах.
Недалеко от гостиницы обнаружил представителя вымирающего вида городского пассажирского транспорта. Говорят, еще несколько лет назад велорикша был популярным средством перемещения по Хуньчуню.

Сейчас ситуация стала меняться.

Мото- и электрорикши стремительно захватывают нишу велорикшей.
Шокирующая скидочная программа одной из куриных гамбургерных
Проверил цены в существующих кафе быстрого обслуживания. Удивила ценовая политика одного из них. Мы назвали эту схему «9-12-15». Один гамбургер вам обойдется в 9 юаней, за два вы заплатите 12, ну а за три – всего 15. Есть над чем подумать при выработке нашей ценовой политики.

Зашел сегодня в магазин с названием «2 юаня», почти все товары в котором продаются реально за 2 юаня, или 17 рублей по курсу на сегодня. Решил сфотографировать на память надписи на стенах.
Обидно осознавать, что это объявление написано для наших соотечественников.

Объявление в магазине с самыми дешевыми товарами в мире
Памятник трепангу – морскому огурцу. Он сделал сегодняшний день! Интересно, что китайское название Владивостока – Хайшэньвэй () – означает как раз «Бухта трепанга».

ДЕНЬ 37. Стандарты для тиражирования опыта
Сегодня вернулся на родину. Полон новых впечатлений и информации. По-прежнему готов сворачивать горы. Уверенность в своих силах многократно выросла, да и горы стали казаться не такими высокими.
Мир полон знаков, они окружают тебя повсюду. Их только нужно научиться правильно читать. Вчера в Китае во время ужина в кафе подошел ко мне абсолютно незнакомый человек и сказал: «Я случайно подслушал Ваш разговор с другом про продажи и продвижение. Меня то, что Вы рассказывали, очень впечатлило. Я являюсь директором крупной мебельной фабрики во Владивостоке и готов взять Вас на работу руководителем продаж прямо сейчас. Запишите, пожалуйста, мой телефон…»
Что значит для нашего проекта эта случайная встреча? То, что нам нужно использовать любые, даже такие необычные способы поиска партнеров и персонала? То, что мы нашли производителя мебели для наших пиццерий? Или что-то иное? В любом случае, мы должны помнить: случайные встречи – не случайны…
Сегодня в автобусе по пути из Китая во Владивосток записал в ежедневнике мысли про сборник стандартов, которые мы должны разработать, чтобы тиражировать опыт создания одной пиццерии в других точках собственной сети и на предприятиях будущих партнеров-франчайзи.
Чтобы не откладывать дела в долгий ящик, нужно приступить к их созданию прямо сейчас.
1. Стандарты должны описывать правила для регулярно повторяющихся процессов и процедур.
2. Работать над сборником регламентов нужно на регулярной основе. Если создавать хотя бы один документ в неделю, то через год у нас будет как минимум 52 регламента или стандарта.
3. Документы должны быть лаконичными и информативными.
4. Понимая, что в современном мире люди не слишком стремятся читать, нужно заменить и/или дублировать часть текста комиксами, картинками и схемами.
5. Стандарты стоит перевести в электронную форму и демонстрировать на электронных носителях, в том числе и на производственных участках, чтобы наши пиццайоло могли обращаться к ним по мере необходимости.
6. При создании наших стандартов необходимо использовать наработки игроков отрасли (российских и зарубежных) и свои собственные.
7. Понимая, что люди делятся на аудиалов, визуалов, кинестетиков и смешанные версии этих категорий, при формировании стандартов нужно учитывать разное восприятие людьми одной и той же информации.
8. Сетевой формат строящейся компании позволит нам возродить то, что практиковалось еще в советское время – обмен опытом родственных отраслевых предприятий. Это, по моему мнению, упростит и сделает более эффективным создание стандартов.
9. Регулярный выход «в поле», который я планирую внедрить для топ-менеджеров нашей компании, неизбежно позволит им увидеть нюансы работы не из уютных кабинетов, а непосредственно у сборочных столов, печей, на складах и во время доставки готовой продукции клиентам.
10. Привлечение знакомых художников придаст стандартам необходимый шарм профессионализма и толику юмора.
ДЕНЬ 38. В поисках фирменного стиля
Сегодня попросил нашего питерского поставщика оборудования ускорить проектировочные работы. В итоге нас связали с сотрудником, который имеет 3-летний опыт проектирования пиццерий для крупной российской сети.
Отправил ему чертежи помещений одной из наших будущих пиццерий в AutoCad и фотографии, сделанные внутри здания.
Решили не гнать лошадей и дождаться ответа проектировщиков из Петербурга. Хочется скорее увидеть, что получится в итоге.

Поставщик оборудования обрадовал, что наши печи из Италии придут к ним на склад к 22—23 февраля. Это значит, что через пару недель их можно будет встречать во Владивостоке.
С чертежами и фотографиями нам обещал помочь местный дизайнер. Первые наброски от него мы получили еще в воскресенье.
Разговаривал со знакомым художником (мы с ним здорово сработались в наших строительных проектах). Обрисовал ему задачу по созданию забавных рисунков и пиктограмм для сборника стандартов и регламентов, отправил ему образцы креатуры от конкурентов. Завтра обсудим условия сотрудничества.
Пара минут отдыха среди интенсивного рабочего дня… Бродил по Интернету и размышлял о дизайне фирменных открыток – они могут стать уникальной фишкой наших пиццерий.
Возможно, нам стоит разработать и свой фирменный шрифт для забавных надписей на рекламных материалах.
ДЕНЬ 39. Карта сайта
Вышел на связь питерский проектировщик, попросил озвучить базовые позиции в меню помимо пиццы. Это необходимо для более точного выбора и размещения оборудования и технологической мебели на проектируемой кухне.
В связи с тем, что наше меню еще не сформировано, пришлось додумывать на ходу. С большой долей вероятности в состав меню войдут:
1. пицца
2. сэндвичи и/или роллы
3. куриные крылышки или наггетсы
4. запеченные картофельные дольки
5. салаты
6. морсы и молочные коктейли
7. кофе и кондитерка.
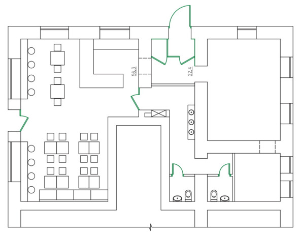
Эскиз второй пиццерии готов. Завтра опубликую вместе со списком вопросов и пояснений.
Днем на производственной планерке определились с приоритетами. Строительные работы в помещениях первой пиццерии будут активизированы сразу после февральских праздников. В свободное от данной работы время строители продолжат отделку кабинетов для команды нашего проекта.
Читатели блога настаивают на создании карты сайта. Вынужден согласиться, с ростом количества публикаций путешествие по блогу, не говоря уже о поиске необходимой информации, становится трудной задачей даже для меня. Займусь этим вопросом на ближайших выходных.
ДЕНЬ 40. Что в меню?
Весь день изучал меню разных пиццерий. Судя по всему, половина ассортимента наших коллег по цеху включает классику, и половина – современные пиццы. Вряд ли и нам стоит отходить от этого принципа. Пора обсуждать первоначальное меню нашей сети. Понятно, что со временем начнем эксперименты, будущая творческая лаборатория разработает для нас десятки новых рецептов. Начать же хочу с классики, которая никогда не стареет.
Один из самых важных компонентов пиццы – это ее основа. Изучение рецептур и методов производства теста заняло у меня немало времени.
Рассчитал необходимые объемы закупа компонентов для пиццерий всех типов: больших, средних и маленьких. Теория полностью готова. Дело за практикой.
В ближайшее время нужно разместить первые заказы на ингредиенты.
Исходя из потенциальных объемов, нам нужно организовывать на заводе не только тестомесный цех, но и распределительный центр. Он будет снабжать сырьем все городские точки сети.
Поставил задачу к моменту открытия первой пиццерии придумать рецепт и название фирменного блюда в качестве альтернативы пицце, на случай, если кто-то из наших гостей захочет временно отдохнуть от основного продукта.
Такое блюдо должно производиться из тех же компонентов, но отличаться по вкусу, размеру и внешнему виду. Вероятнее всего, этим продуктом станут особые сэндвичи или роллы. Однако пока не будем забегать вперед.
Наши проектировщики так и не смогли вписать оборудование на кухне в помещение кафе на Баляева. С большим сожалением пришлось отказаться от его аренды. Успокаивает лишь вера в то, что скоро мы найдем еще более привлекательный вариант.
Получили рабочий эскиз второй пиццерии – без зала для обслуживания гостей в центре города. Проектировщик постарался. Оригинал просто не узнать! Изучал возможные платформы с адаптивным дизайном для размещения в сети нашей базы знаний по стандартам и регламентам. Завтра постараюсь выбрать и купить один из шаблонов для начала работы.

ДЕНЬ 41. Шоу за стеклом
Вспомнился анекдот: «Вчера с друзьями ходили на экскурсию на молокозавод, – больше не пью молоко и не ем йогурт. Сегодня ездили на колбасную фабрику, – больше не ем колбасу и не покупаю фарш. Завтра предложили экскурсию на ликероводочный комбинат. Не поеду!!!»
Привел его неслучайно. Экскурсия в любую из наших будущих пиццерий не должна походить на анекдот. Более того, люди, даже случайно оказавшиеся у нас на кухне, должны увидеть современную организацию пищевого производства, отвечающую всем требованиям СанПиН (Санитарных правил и норм).
Обсуждая сегодня с дизайнером и строителями работы по перепланировке помещения под вторую пиццерию, я понял, что использование стеклянных перегородок между кухней и залом для обслуживания посетителей решает сразу несколько задач:



