
Полная версия:
Перепланировка и ремонт

Балашов Кирилл Владимирович
Жмакин Максим Сергеевич
Перепланировка и ремонт
Введение

С чего же лучше всего начать ремонт и какова будет его стоимость? Это основные вопросы, которые задают себе люди, планирующие начать ремонт в своей квартире. Иногда все мы пытаемся как-то обустроить свое жилище, сделать его как можно более уютным, но в большинстве случаев причины, побуждающие к началу ремонта, бывают более приземленными – потемнели обои, отходит от стен штукатурка. Серьезный ремонт предстоит и в том случае, если вы купили себе новую квартиру. Практически каждый будет согласен с тем, что все, что связано с ремонтом, следует распланировать еще до его начала. В этом случае шансы на успешное завершение работ значительно возрастают в отличие от ситуации, когда ремонт будет производиться спонтанно, без необходимой подготовки.
Будет гораздо лучше, если вы как здравомыслящий человек сумеете тщательно продумать все мероприятия, которые будут входить в ремонт, как события, которые должны произойти в ближайшем будущем. Время, которое должно пройти от составления плана ремонта до его начала, нужно потратить грамотно – на походы по магазинам, покупку стройматериалов, накопление финансовых ресурсов. К слову, последний пункт в значительной степени повлияет на выбор инструментов и строительных материалов, которые вы будете использовать в процессе ремонта. Но, прежде чем покупать что-либо, просто походите по различным строительным магазинам, рынкам, узнайте цены.
Также вам следует прикинуть, насколько хорошо будут сочетаться между собой те или иные материалы, поэтому в голове вам все время нужно держать конечный результат ремонта, а бюджет ремонта распределить таким образом, чтобы все помещения в вашем доме смотрелись достаточно привлекательно и не контрастировали друг с другом.
В процессе выбора материала вам неплохо бы посоветоваться, причем как со специалистами, так и со своими знакомыми и друзьями. Если вам позволяют финансы, то не будет лишним получить консультацию у профессионального дизайнера или даже заказать у него проект внутренней отделки помещений вашей квартиры.
От вашего настроя и профессионального подхода к работе будут зависеть успешность выполнения ремонта и расход вложенных в него средств. Вам не нужно пугаться предстоящего ремонта, ведь в этой работе нет ничего такого, что было бы вам не под силу. Вам надо действовать по установленной программе, включающей целый ряд вопросов и мероприятий, которые вы должны сами для себя определить.
Вам надлежит постоянно помнить о том, что этот ремонт вы делаете только для себя, поэтому жилище должно быть комфортным именно для вас. Вы не должны бояться разного рода оригинальных решений. При этом не следует гнаться за модой, так как она постоянно меняется. Из всего многообразия решений и предложений вам следует выбрать именно то, что больше всего подходит для вас и вашей семьи.
Когда вы примете решение о том, что ремонт в вашей квартире все-таки необходим, то вам следует в первую очередь подумать о том, чего вы стремитесь добиться в итоге. В этом вопросе вам нужно будет не только опираться на свое творческое мышление, но и посоветоваться с членами вашей семьи, выслушать их предложения по поводу того, какой они хотят видеть свою квартиру после ремонта. После этого вам придется суммировать все пожелания и принять решение, которое устроит всех.
Следующий шаг будет значительно более трудным, так как вам придется соотнести разработанный план с теми финансовыми средствами, которыми вы располагаете. Однако этот вопрос вполне разрешим. Здесь вы должны тщательно продумать то, какую сумму из семейного бюджета можно выделить на ремонтные мероприятия. Если она не будет удовлетворять вашим потребностям, то ремонт придется отложить до того времени, пока вы скопите необходимую сумму. После этого можно составить смету, прибавив к ней еще 25 % на непредвиденные расходы.
В этом случае вам нужно ориентироваться на средние цены на товары и услуги. Вполне возможно, что для этого вы воспользуетесь различными журналами с рекламой строительных организаций и попытаетесь приблизительно вычислить стоимость предстоящего ремонта. Однако вы быстро поймете, что на рынке строительных инструментов и материалов существует достаточно большой разброс цен.
Не исключен и такой вариант: вы обратитесь к своим друзьям или знакомым, которые недавно делали ремонт, но вам скоро станет ясно, что и таким образом вычислить стоимость ремонта тоже не удастся. В связи с этим предлагаем воспользоваться приведенной ниже методикой оценки стоимости ремонта.
Прежде всего вам следует понять, что ремонт соответствующего уровня может быть осуществлен только с использованием строительных материалов высокого качества. Такой подход поможет вам сохранить квартиру в надлежащем виде в течение длительного времени.
Следующим шагом должно стать приглашение профессионального дизайнера, который поможет вам создать весьма привлекательный образ вашего дома после ремонта, а также подобрать необходимые материалы и, возможно, мебель. После визита дизайнера вам будет значительно проще оценить будущий ремонт.
Во время покупки строительных материалов вам следует руководствоваться таким правило: все покупаемые материалы должны соответствовать друг другу по стилю, цене и уровню качества.
После того как вы определитесь со стоимостью инструментов и материалов по всем пунктам ремонта, вам, наконец, удастся получить его конечную стоимость. Если же вы свои вычисления производили без проекта, то их точность будет отличаться от реальной цены на 20—30 %. Имея проект, вы получите другой результат, по которому разница между предполагаемой и реальной стоимостью ремонта составит только 5 %.
Если у вас есть некоторые навыки проведения ремонтных работ, а также достаточное количество свободного времени и желание что-то сделать своими руками, то при расчете стоимости вам стоит исключить из нее те работы, которые вы можете выполнить самостоятельно. Например, вам под силу произвести уборочные и подготовительные работы, а также разного рода мелочи вроде покраски дверей, снятия старого слоя краски или старой штукатурки.
Кроме того, если вы будете хорошо знать, какое количество строительных материалов расходуется в процессе ремонт, это позволит вам приобрести некоторые преимущества при разговоре с исполнителем вашего заказа.
Вам также следует решить еще один важный вопрос: оставите ли вы прежнюю планировку вашего дома или будете ее менять?
Если же вы все-таки решили снести некоторые стены или их часть, совместить ванну и туалет в один узел, то эти работы должны осуществляться в первую очередь. Такая смена внешнего вида вашего дома должна быть произведена еще до начала ремонтных работ. (Все основные моменты, касающиеся этого процесса, будут подробно рассмотрены в главе «Перепланировка».) Если вас полностью устраивает расположение комнат в вашем доме, а также общая его планировка, то в смету не придется вносить перенос или снос стен.
После этого вам нужно будет привести в полный порядок все коммуникации в квартире – водопровод, канализацию, электроснабжение, теплообеспечение. (Об этом будет подробнее сказано в соответствующих главах книги.) Если вы собираетесь менять сантехнику, то устанавливать новую нужно будет тогда, когда вы приступите к ремонтным работам в санузле. Однако проводку следует проверить перед началом ремонта, чтобы ее не пришлось менять уже после того, как будут наклеены новые обои.
Если во время осмотра квартиры вы нашли значительный дефект, который расположен в труднодоступном месте, например повреждение проводки, щель под ванной и иное, то вам необходимо будет взять это на заметку. Устранять подобные изъяны достаточно проблематично, поэтому лучше это делать тогда, когда вы будете производить другие работы. Например, щель под ванной можно заделать в процессе замены сантехники или при выполнении облицовки плиткой. Однако иметь это в виду надо в любом случае, так как вы можете просто забыть о существующей проблеме, а позже столкнуться с тем, что труба дала течь под новой ванной и вода льется прямо на новую плитку.
Ремонтные работы могут осуществляться по двум основным направлениям – или ремонтировать всю квартиру сразу, или производить ремонт каждой комнаты в отдельности. В первом случае это будет несколько удобнее, так как вам не придется перетаскивать тяжелую мебель, гораздо меньше шансов будет ее испортить каким-либо образом, например испачкать краской или лаком. Помимо этого, при ремонте всей квартиры вы сразу будете видеть каждую деталь вашего жилища. Расход материала в этом случае будет меньше, хотя и не намного.
Если же у вас нет такой возможности, то придется производить работы в каждой комнате по очереди. Данная разновидность ремонтных работ имеет установленную очередность: потолки, стены, окна и двери, полы.
Глава 1
Перепланировка
Правила перепланировки квартир


Достаточно часто для создания комфорта в квартире нужно перенести дверной проем, убрать часть стены или сделать еще что-то, что можно назвать словом «перепланировка».
Следует сказать, что перепланировкой занимались и ранее, во времена СССР, однако это стало масштабным с тех пор, как было разрешено приватизировать квартиры. Например, в 1993—1995 гг. люди ломали ванны, устанавливали бани, совмещали кухни и комнаты. В отдельных случаях доходили даже до того, что сносили вентиляционные каналы, чтобы установить, например, холодильник. При этом люди зачастую не задумывались над тем, что оставляют без вентиляции всех, кто живет ниже.
В 1998 г. было издано постановление, по которому при оформлении договора купли-продажи следовало произвести обязательное обследование квартиры на предмет несогласованной ее перепланировки. Ранее документов, которые регулировали бы технологию перепланировки квартир, не существовало.
В течение последних 10 лет в этой области было много неясного и непонятного, однако с 1 марта 2005 г. в силу вступил новый Жилищный кодекс Российской Федерации, который в достаточно строгой форме регламентирует правила перепланировки, а также все процессы, связанные с согласованием этих действий.
Согласно этому кодексу человек, собравшийся произвести перепланировку своего жилища, обязан обратиться в органы местного самоуправления и подать заявление, чья форма определяется Правительством РФ.
Основное ограничение, касающееся перепланировки квартир, заключается в том, что в ней нельзя разрушать несущие стены. Это положение особенно важно для панельных домов. В кирпичных домах имеются стены, на которые опираются бетонные плиты, а остальные стены выполняют функцию перегородок, поэтому их роль не настолько важна в конструкции здания. В строениях панельного типа прочность и устойчивость всей конструкции напрямую зависит от того, насколько прочны панели в каждом помещении, поэтому снос несущей стены может привести в итоге к обрушению здания.
Относительно перепланировки подсобных помещений следует сказать, что в свое время жильцы квартир, находящихся на первых этажах, обкладывали пространство под балконом кирпичом, получая, таким образом, нечто вроде кладовой или подобия погреба. Однако теперь данная процедура требует разрешения не только администрации, но и архитектурного и земельного комитетов города. Дело в том, что подобное действие в значительной степени затрагивает внешний облик строения, его архитектуру.
Подобные проекты оформить стало в последнее время крайне проблематично, однако, если архитектурный комитет сочтет, что облик строения не пострадает из-за подобной перепланировки, то разрешение на это будет дано.
В последнее время стал популярным еще один метод изменения планировки квартиры – пространство жилища увеличивается за счет площади лоджии.
Поступают таким образом: полностью убирают оконный блок и делают комнату более просторной. Однако так поступать тоже не следует, так как в этом случае будет затронута отопительная система, т. е. возрастет тепловая нагрузка на нее, что, естественно, не было предусмотрено в проекте строения. В итоге получится так: кто-то будет находиться в теплой комнате, а кому-то не будет хватать тепла.
Недопустимо увеличивать площадь квартиры за счет мест общего пользования. Не следует размещать кухню, санузел над жилыми комнатами нижележащей квартиры, так как первая обеспечивается улучшенной вентиляцией, а второй – повышенным уровнем гидроизоляции. Если проект перепланировки будет выполнен с учетом всех требований и указаний СНиПа, то ее можно будет произвести, а если нет, хозяину помещения придется вернуть все в прежнее состояние.
Однако не следует истолковывать действующие на территории РФ СНиПы, особенно СНиП 2.08.01-89 «Жилые здания», который имеет непосредственное отношение к перепланировке квартир, в качестве свода запрещающих указаний, которые никак нельзя обойти.
Из материала справочного пособия к СниПу 2.08.01-89 «Отопление и вентиляция жилых зданий» следует, что воздушно-тепловой режим в комнатах является одним из ведущих показателей, который влияет на уровень комфортности помещения.
Во время произведения перепланировки нужно обязательно учитывать, что нежелательный микроклимат, созданный в квартире, приведет к тому, что она станет непригодной для проживания там людей.
Чтобы воздушно-тепловой режим в квартире был оптимальным, необходимо как можно лучше изолировать помещения от смежных. Это делается для того, чтобы количество циркулирующего воздуха было как можно меньшим.
Воздух, перетекающий из одной квартиры в смежную или на лестничную клетку, становится одной из главных причин, которые понижают в значительной степени эффективность вентиляционной системы. Это в результате приводит к тому, что воздушная среда в квартире становится неудовлетворительной. Для того чтобы этого избежать, в строительной части проекта квартиры должны иметься планировочные, конструктивные и технологические решения, которые будут сводить к минимуму возможность перемещения воздуха в пределах между квартирой, смежными помещениями и лестничной клеткой, а также между коммуникациями.
В процессе создания дизайн-проекта квартиры обязательно нужно учесть санитарно-гигиенические требования, необходимые нормы освещенности квартиры, которые указаны вп. 1.2 СНиПа 2.08.01-89.
В жилых домах проекты квартир должны быть выполнены таким образом, чтобы в каждую из них могла заселиться одна семья. В квартире должны находиться жилые комнаты и подсобные помещения (кухня, передняя, душевая или ванная, туалет, кладовая). Допустимо оборудование в квартире помещения, предназначенного для хозяйственных работ, холодной кладовой, сушильного шкафа для обуви и одежды.
Согласно положениям СНиПа площадь общей комнаты в однокомнатной квартире должна быть не менее 14 м2. Если в квартире две или более комнат, то в этом случае площадь общей комнаты должна быть не менее 16 м2, а других комнат и кухни – 8 м2 или более.
Площадь спальной жилой комнаты, находящейся в надстраиваемом мансардном этаже двух-, трехкомнатных квартир, должна быть 7 м2 или более при том условии, если общая комната имеет площадь не менее 16 м2.
В однокомнатных квартирах допустимо сооружение совместного санитарного узла. В любом случае двери ванной комнаты и туалета должны открываться наружу.
Вход в помещение, где установлен унитаз, из кухни или из жилых комнат (кроме квартир, предназначенных для инвалидов) строго запрещается.
Категорически запрещается размещать ванную и туалет непосредственно над жилыми комнатами. Установка ванной или душевой с туалетом над кухней допустима только в случае двухуровневых квартир. Трубопроводы не должны крепиться к стенам, которые разделяют жилые комнаты.
Если в кухне будет установлен газовый водонагреватель, то его газоход нужно обязательно рассматривать в качестве дополнительного вытяжного канала.
Ни в коем случае недопустимо объединение вентиляционных каналов, идущих из кухни, туалета, ванной, кладовой, с каналами, которые идут из помещений поквартирных генераторов тепла или гаражей.
Если вы все-таки решили произвести перепланировку своей квартиры, то в первую очередь необходимо изготовить рабочие чертежи интерьера будущего помещения, причем в этот вариант должны обязательно входить габариты подобранной мебели, оборудования, отделочные материалы. Вся эта работа является достаточно трудоемкой и рутинной. В ее основе лежат математические расчеты и создание конструктивных элементов. Дизайн-проект квартиры на деле представляет собой совокупность:
♦ плана перепланировки квартиры или одного помещения;
♦ общей схемы электропроводки и мест, где будут находиться осветительные приборы;
♦ деталей отделки различных элементов помещения;
♦ плана установки сантехники;
♦ плана покрытия полов;
♦ плана отделки потолка;
♦ элементов потолка, имеющих сложную конструкцию, данных в разрезе;
♦ развертки стен по плитке;
♦ плана установки мебели;
♦ цветов, в которых будет выполнен интерьер в трехмерной обработке, т. е. с уже установленной мебелью и сантехническим оборудованием. Это может быть выполнено от руки или с помощью компьютера.
Дизайн-проект разрабатывается индивидуально. После того как все эти документы будут согласованы с архитектурным комитетом, можно непосредственно приступать к реализации перепланировки.
Разделение помещения на функциональные зоны
Согласно нормативному документу СНиП 2.08.01-89 в квартире должны быть обязательно предусмотрены жилые и подсобные помещения – кухня, передняя, ванная, туалет.
Жилые комнаты представляют собой помещения с естественным освещением, которые предназначенные для проживания в них людей. Как правило, выделяются комнаты общесемейного пользования, например общая комната или гостиная, и личные комнаты для 1 или 2 человек, например спальни. В квартире с высоким уровнем комфортности, где проживает лишь одна семья, могут быть также предусмотрены и другие типы комнат – столовая, кабинет для работы, игровая, комната для отдыха.
Подсобные помещения включают в себя кухню, переднюю, ванную, туалет, кладовую, хозяйственно-рабочие помещения, встроенные шкафы и т. д.
Жилая площадь всей квартиры складывается из площадей всех жилых помещений, т. е. комнат. Общая же площадь включает в себя еще и все подсобные помещения, кроме того, в нее входят и открытые помещения – лоджии, балконы и т. д.
Однако для этих помещений существуют определенные понижающие коэффициенты: для лоджий – 0,5, для балконов – 0,3, для холодных кладовых – 1,0.
Квартира предназначена для удовлетворения потребностей как всей семьи в целом, так и каждого человека в отдельности.
Она, с одной стороны, является местом, где человек может уединиться, а с другой – местом развития семейных отношений.
В связи с этим при проектировании квартиры должны удовлетворяться несколько двойственные требования – обеспечение изоляции и объединения.
При создании планировочной структуры квартиры обычно пользуются следующими принципами заселения: спальные места для супругов помещают в отдельную комнату, однако при этом учитывается возможность временного расположения в спальне детской кровати для ребенка до 4 лет. Спальные места для каждого взрослого человека находятся в отдельной комнате. Размещение двух спальных мест в одной комнате допускается в случае, если в ней будут находиться дети или взрослые одного пола либо дети разного пола, возраст которых не превышает 9 лет. В общей комнате может быть оборудовано спальное место для гостей.
Жилищная обеспеченность определяется количеством квадратных метров, приходящихся на 1 человека. В среднем жилье этот показатель составляет 18 м2/чел., в комфортабельном – 28– 32 м2/чел., а в высококачественном он превышает 32 м2/чел.
Главное условие высокого уровня комфортности жилища заключается в том, что в нем должна обеспечиваться возможность осуществления какой-либо деятельности. В проекте жилища должна быть обязательно предусмотрена определенная свобода выбора для нахождения человека, мебели и разных предметов, которые необходимы для той или иной деятельности.
Основой для строительства любого жилого помещения является функциональная зона для какого-либо бытового процесса.
Она представляет собой место с условными границами. Именно в ней происходят процесс жизнедеятельности или даже целая группа родственных процессов. Размеры данной зоны обычно вычисляют, руководствуясь антропометрическими и эргономическими требованиями.
Функциональная зона, в которой осуществляются бытовые процессы жизнедеятельности человека, включает в себя три основных компонента – постановочную площадь, где монтируется оборудование для данного процесса (в нашем случае – мебель), рабочую площадь, в которой используется необходимое для процесса оборудование, а также резервную площадь, по которой человек перемещается во время реализации данного процесса.
Размеры таких зон вычисляются исходя из количества членов семьи, проживающей в данной квартире, кроме того, должен учитываться уровень жилищной обеспеченности (рис. 1).

Рис. 1. Функциональные зоны бытового процесса: а) зона сна: 1 – кровать; 2 – тумба; 3 – шкаф; б) зона занятий: 1 – компьютерный стол; 2 – стол; в) зона хранения
Каждая из подобных зон должна обладать определенным уровнем самостоятельности, вследствие чего их можно различным образом комбинировать и размещать относительно друг друга по-разному. Расстояния между крайними предметами в двух соседних зонах должно быть не менее 30 см для помещения, которым пользуются 1—3 человека, или 50 см, если им пользуются 4 или больше человек.
Главной составной частью пространственной организации квартиры является помещение, в которое входят функциональные зоны, предназначенные для бытовых процессов, а также коммуникационные площади. Систему помещений жилища в большинстве случаев создают, базируясь на группах зон бытовых процессов. К примеру, группа зон гигиены является основой для помещений санитарного узла.
Помещения должны быть спланированы таким образом, чтобы в них можно было размещать функциональные зоны по-разному. Параметры каждого из помещений квартиры, т. е. площадь, конфигурация и некоторые другие, должны быть выбраны на основе планируемого количества функциональных зон. Общее же количество помещений в доме прямо пропорционально комфортабельности жилища и уровню дифференциации зон.
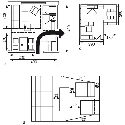
Общая комната является основной комнатой квартиры. Она предназначена для общесемейного пользования и служит в первую очередь для активного отдыха, например общения в семье, приема гостей, а также для занятий разного рода любительской и профессиональной деятельностью. В жилище экономкласса она же будет служить гостиной, столовой, комнатой для занятий и т. д. В квартире повышенной комфортности следует оборудовать сразу несколько общих комнат – гостиную, столовую, кабинет, семейную комнату (рис. 2).

Рис. 2. Функционально-планировочная организация общей жилой комнаты: а) примеры планировочной организации; б) общие комнаты сложной формы; в) зона просмотра телевизора
Общая комната должна иметь площадь не менее 12 м2. В комфортабельном жилище ее площадь должна быть в пределах от 16 до 30 м2. На определенном этапе увеличение площади общей комнаты не повышает комфортность проживания в квартире. В этом случае желательно сделать три помещения для времяпрепровождения всей семьи – гостиную, столовую и семейную комнату, предназначенную для отдыха.
Как правило, общая комната имеет квадратную форму (соотношение длины сторон 1 : 1), а иногда ее делают прямоугольной (стороны относятся друг к другу как 1 : 1,5). Квадратная комната практически по всем показателям является гораздо предпочтительнее прямоугольной. Однако у прямоугольной комнаты периметр является несколько большим, поэтому обставлять ее мебелью будет гораздо удобнее. К примеру, для оборудования столовой больше подойдет прямоугольная комната, так как она визуально будет казаться больше за счет длинных стен и в ней можно разместить значительно большее количество оборудования по сравнению с квадратной.
Исходя из своих основных функций общая комната должна находиться в центральной части жилища, так как она будет содержать в себе следующие функциональные зоны – зону принятия пищи, зону проведения свободного времени, зону отдыха и др.



